Site Apostolinnen
In het historische centrum van Mechelen ligt de site Apostelinnen, op een hoger gelegen deel van de stad langs de Dijle. In de vroege ontwikkeling van Mechelen ontstonden er twee verschillende kernen die zich onafhankelijk van elkaar ontwikkelden aan weerszijden van de Dijle. Dit duale verleden weerspiegelt zich vandaag nog steeds in het afwisselend grillige en onregelmatige stratenpatroon. In de middeleeuwen was dit deel van de stad minder dicht bebouwd. In het intra muros-gebied ontwikkelde zich bovendien landbouw. Later lieten welgestelde inwoners hier ook buitenverblijven en vakantiehuizen oprichten.
In 1926 kocht de familie Devis de site met de ambitie om het om te vormen tot een residentiële ontwikkeling, met behoud van de handelsfuncties langs de Onze-Lieve-Vrouwestraat. Om deze herontwikkeling zorgvuldig te kunnen aanpakken, werd door dmvA aan geschiedkundige P. De Greef gevraagd een historisch onderzoek over de site uit te voeren. De resultaten van dit onderzoek vormden mee de basis voor het ruimtelijk en conceptueel uitgangspunt van het project. Het was echter belangrijk om in het ontwerp de genius loci terug tot uiting te laten komen en de historische elementen te respecteren en te heropleven.
Uit het onderzoek bleek dat zich tussen de Onze-Lieve-Vrouwestraat en de Tessestraat doorheen de eeuwen een fijnmazig netwerk van steegjes, woningen en werkplaatsen had ontwikkeld. In het begin van de 17de eeuw groeide de site meer naar een samenhangend geheel door het samenvoegen van verschillende percelen, waarbij het zogenoemde hoff ende huys meerdere keren van eigenaar wisselde. Later werd het domein ingenomen door de Apostolinnen, die door de aankoop van aanliggende percelen de site verder uitbreidden. In de loop van de 19de eeuw transformeerde het domein tot huisvesting voor de middenklasse en evolueerde het tegen het einde van die eeuw tot een dichtbebouwde woonkazerne. In 1926 werd het eigendom van de familie Devis en werd er een beddenwinkel in ondergebracht.
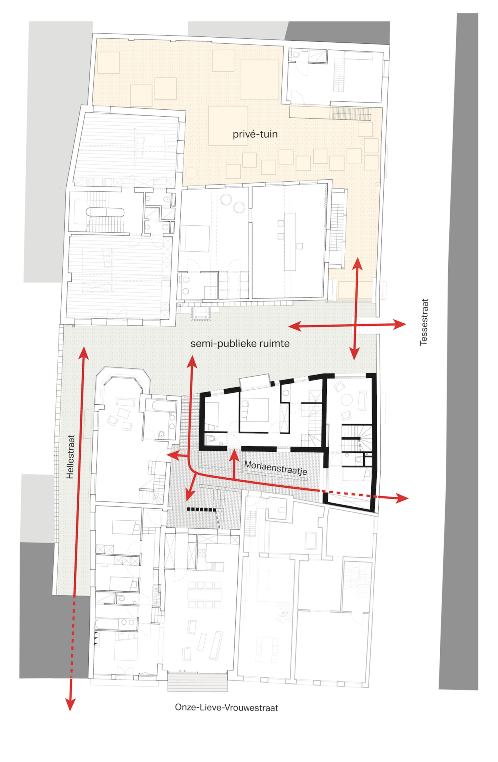
De site is gelegen tussen de Onze-Lieve-Vrouwestraat en de smalle Tessestraat. Volgens het historisch onderzoek zijn er sinds de Middeleeuwen veel straten en steegjes verdwenen, waaronder het Moriaenstraatje en het Hellestraatje. Het Hellestraatje liep parallel met de Tessestraat en het Moriaenstraatje lag evenwijdig met de Onze-Lieve-Vrouwestraat. Ondanks deze verdwenen structuren zijn op de site nog steeds talrijke historische elementen aanwezig, zoals het Somerhuys, het erkerhuis, delen van het oude klooster en de oorspronkelijke tuinmuren.
Bij aanvang was de site volledig volgebouwd.
Door het binnengebied open te werken, konden de verdwenen straatjes opnieuw worden geïntroduceerd en werden de historische hoofdvolumes weer zichtbaar.
Het ontwerp vertrekt vanuit het historische stratenpatroon, waarbij het Hellestraatje en het Moriaenstraatje opnieuw zichtbaar worden gemaakt. Langs het Moriaenstraatje werd een nieuwbouw toegevoegd. Daarnaast werd het Somerhuys in ere hersteld met een toevoeging van circulatie aan de buitenzijde.
Op de site kunnen we zeven entiteiten onderscheiden: Het Somerhuys (17de eeuw), gerestaureerd en dient als privéwoning; een arbeiderswoning (20ste eeuw), gastverblijf in de privétuin van het Somerhuys; het Pakhuis (18de eeuw), basisonderdeel van het klooster van de Apostolinnen, bestaat nu uit 8 studentenstudio’s; een gerestaureerd erkerhuis (18de eeuw), twee 19de eeuws gebouwen met op de gelijkvloers winkelruimtes en boven 4 woonentiteiten; en tenslotte een nieuwbouw met 2 triplexwoningen.
Aan de Onze-Lieve-Vrouwestraat zijn er twee 19de eeuwse gebouwen met winkelruimtes op de benedenverdieping. Achter en boven de winkels bevinden zich 6 woonentiteiten, waaronder een nieuwbouw met twee triplexwoningen. De nieuwbouw dient als katalysator voor de gehele site: het is een bakstenen monoliet met buitentrappen die, in samenwerking met de stegen en de patio’s, voor nieuwe circulatie op de site zorgen teruggrijpend naar het Moriaenstraatje. Via de trappenconstructie zijn de woningen boven en achter de winkelruimtes opnieuw bereikbaar. Het gebouw is een overtreffende trap in baksteensteenarchitectuur, die met zijn tactiliteit opvalt door de uitpuilende voegen in het metselwerk. Naast de nieuwbouw bevindt zich een gerestaureerd erkerhuis uit de 18de eeuw waarin ook een triplexwoning is ondergebracht.
Centraal op de site bevindt zich het Somerhuys, gebouwd in de 17de De ramen zijn allemaal op het zuiden gericht, volgens het onderzoek was dit een woning die uitsluitend de zon als warmtebron gebruikte. Het huis werd gerestaureerd en dient als een privéwoning. Om de moer- en kinderbalken van de woning integraal te behouden, werd de stalen trap buiten het gebouw geplaatst.
Aan de Tessestraat bevindt zich de arbeiderswoning uit de 20ste Deze woning is nu een gastenverblijf in de privétuin van het Somerhuys. Ook hier werd een buitentrap in zwart staal voorzien.
Achter het Somerhuys is het Pakhuis gelegen, dat door de ontpitting van de site weer vrij is komen te staan. Het Pakhuis uit de 18de eeuw was het basisonderdeel van het klooster van de Apostolinnen. Het gebouw is nu omgevormd 8 studio’s voor studenten.
Alle ingrepen manifesteren zich bewust als nieuw. Door het historische en het hedendaagse niet te vermengen maar duidelijk van elkaar te onderscheiden, ontstaat een eerlijk geheel waarin verschillende tijdslagen naast elkaar kunnen bestaan en elkaar wederzijds versterken.
De herontwikkeling zet maximaal in op duurzaam ruimtegebruik: waardevolle historische gebouwen worden behouden, herbestemd en geactiveerd. Het openwerken van het binnengebied creëert licht, lucht en aangename verblijfsplekken.
De kleinschalige korrel, de doorwaadbaarheid van het terrein en de mix van functies en woningtypes dragen bij aan een levendig, veerkrachtig stadsdeel. Het geeft de site een menselijke schaal wat bijdraagt aan de sociale duurzaamheid.Het resultaat is een duurzame woonomgeving waarin erfgoed een tweede leven krijgt en een toekomstbestendige manier van stedelijk wonen mogelijk wordt.
Specifics
Opdrachtgever: Fase 1: Visbende / Fase 2: AB nv / B-apart
Locatie: Mechelen
Realisatie: 2014 – 2018
Ontwerpteam: Tom Verschueren, David Driesen, Valerie Lonnoy Veerle Delaunay, Gert-Jan Schulte
Fotografie: Bart Gosselin
Schaal: Fase 1: 350 m² / Fase 2: 1050 m²
















