One Room Hotel
In de nasleep van de financiële crisis van 2008 en in een context van aanhoudend lage spaarrentes is de interesse van particulieren in vastgoedinvesteringen sterk toegenomen. De transformatie van een klein middeleeuws hoekpand tot het “one room hotel” kadert binnen deze tendens.
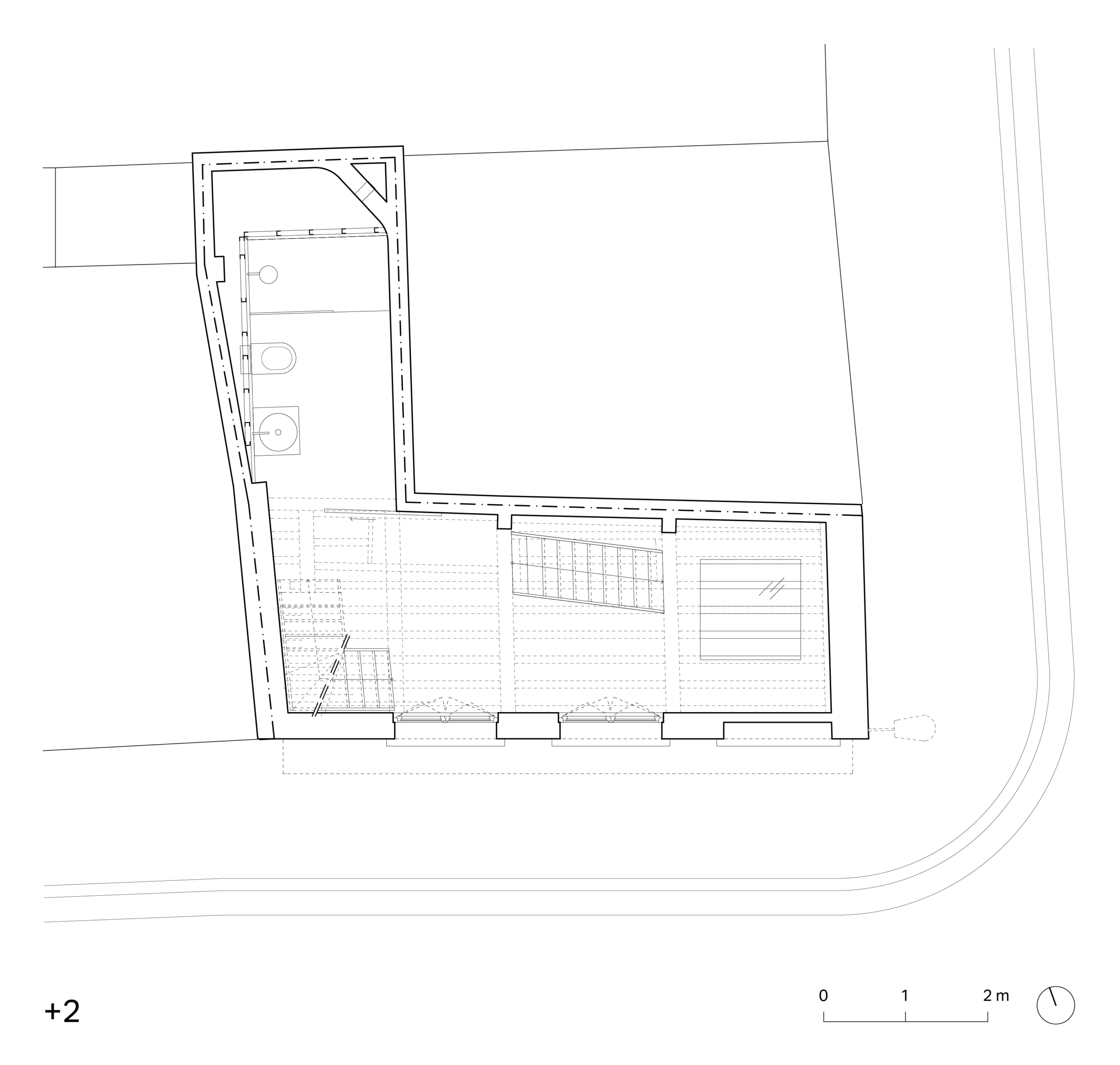
Het wit bepleisterde diephuis uit de tweede helft van de 17de eeuw is gelegen op de hoek van de Lange Brilstraat en de Venustraat, in de historische binnenstad van Antwerpen, nabij de Stadswaag. Omwille van de ligging langsheen de cultuur-as tussen de Grote Markt en het MAS (Museum Aan de Stroom) ontstond het idee om een van de kleinste middeleeuwse woningen (2m x 7m) om te vormen tot het one-room-hotel.
Het hoekhuis telt twee bouwlagen met zadeldak en bestaat uit drie traveeën. Het meest kenmerkend is de zeer smalle trapgevel van 2m breedte met 5 treden en een overhoeks topstuk. Tijdens de 19e eeuw werden de gevels bestaande uit bak- en zandsteen wit bepleisterd. Houten vloeren werden opgebouwd door middel van eiken moer- en kinderbalken. Balksleutels en smeedijzeren muurankers verwijzen naar de rijke geschiedenis van het pand.
Het architecturale concept is gebaseerd op het principe van de promenade architecturale: een opeenvolging van ruimtelijke ervaringen die de bezoeker stap voor stap doorheen de 17de-eeuwse woning leidt. Open trappen slingeren zich speels maar doordacht tussen de historische moer- en kinderbalken, en monden uit in een open witte dakpatio. Van daaruit leidt een ‘oneindige trap’ naar een zwevend viewpoint met uitzicht over de stad. Door het plaatselijk verwijderen van houten vloeren en het vervangen ervan door glazen vloertegels ontstaan diagonale zichtlijnen die het Einraum-effect versterken en de ruimtelijke continuïteit maximaliseren.
Het L-vormig grondplan kan opgedeeld worden in het 17e eeuwse diephuis enerzijds en de ingesloten annex anderzijds. Uit respect voor de erfgoed waarde van het hoekhuisje worden respectievelijk kitchenette, badkamer en sauna ondergebracht in de annex, terwijl het historische volume volledig wordt voorbehouden voor circulatie en verblijfsfuncties.
Alle authentieke historische bouwdelen zoals balklagen, plankenvloeren en natuurstenen consoles worden uniform wit geschilderd, waardoor hun samenhang en leesbaarheid worden versterkt. Alle nieuwe, later toegevoegde elementen zijn bewust duidelijk herkenbaar en uitgevoerd in hout (afzelia en eik), waaronder de monumentale inkomdeur, trappen, vloerafwerkingen en het terras. Zo kan de bezoeker in één oogopslag onderscheiden wat authentiek is en wat nieuw werd toegevoegd. Het contrast tussen wit en hout, tussen historisch en hedendaags, creëert een serene, warme en tijdloze sfeer waarin oud en nieuw elkaar versterken.
Specifics
Opdrachtgever: W-V
Locatie: Antwerpen
Realisatie: 2014 – 2015
Ontwerpteam: David Driesen, Tom Verschueren, Jolien Debaets
Ingenieur Technieken: ASB
Fotografie: Bart Gosselin
Schaal: 103 m²








