Huis van Lorreinen
Huis van Lorreinen bevindt zich op een prominente hoek van de Grote Markt in Mechelen, het historische hart van Mechelen met een rijke geschiedenis. De Grote Markt wordt gekenmerkt door diverse panden die getuigen van verschillende bouwperiodes, met als meest prominente gebouw het Stadhuis. Het Stadhuis van Mechelen is een samenvoeging van verschillende gebouwen en periodes waarbij de oudste delen hun oorsprong vinden in de 14e eeuw. Verder bevinden er zich gildehuizen en heropgebouwde neotraditionele panden. De site bevindt zich op de hoek van de markt, in de schaduw van de Sint-Romboutstoren. De grootste blikvanger van Mechelen.
De stad Mechelen kocht vijf aaneengesloten panden aan op de hoek van de Frederik de Merodestraat en de Scheerstraat, in directe aansluiting op de Grote Markt en binnen de invloedssfeer van de werelderfgoederkende belforttoren van de Sint-Romboutskathedraal. De stad gaf dmvA de opdracht om deze site te herontwikkelen tot een residentieel mixed-use project, met een combinatie van wonen en handel die de stedelijke dynamiek van het centrum versterkt.
Bij aanvang van het project kampte de site met meerdere problemen. De panden verkeerden in bouwvallige staat en stonden grotendeels leeg. Enkel de gevel van het hoekpand was nog geschikt om te behouden. De overige gevels waren te sterk aangetast om te recupereren. Daarnaast ontbraken kwalitatieve lichtinval, lucht en buitenruimte, wat de woonkwaliteit aanzienlijk beperkte.
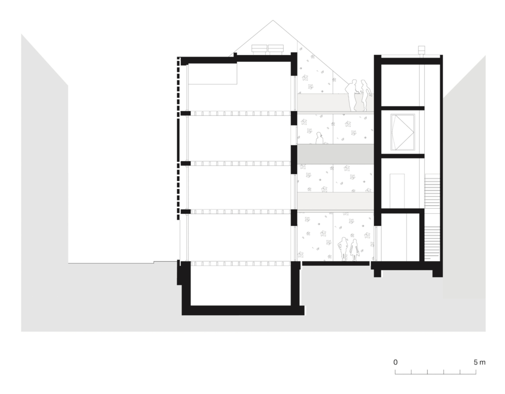
Het ontwerpconcept vertrekt vanuit het creëren van licht, lucht en kwalitatieve buitenruimte. In plaats van de vijf kavels volledig te bebouwen, werd één kavel ingezet als een binnenstraat. Deze nieuwe, semipublieke ruimte fungeert als centrale circulatiezone waaraan alle wooneenheden worden ontsloten. De binnenstraat zorgt niet alleen voor optimale daglichttoetreding tot volumes, maar vormt ook een verbindende en activerende ruimte binnen het project. Aan het einde ervan werd een mur végétal voorzien, die de ruimte vergroent en extra kwaliteit toevoegt.
De private terrassen, opgebouwd uit strekmetalen vloertegels, zweven boven deze binnenstraat en bieden zicht op de nabijgelegen Sint-Romboutstoren.
Huis van Lorreinen is sterk verankerd in de stedelijke morfologie van de Grote Markt. In plaats van één grootschalige nieuwbouw te realiseren, koos dmvA ervoor om de oorspronkelijke perceelsstructuur en opeenvolging van gevels te behouden. Hierdoor blijven de woningen smal en verticaal, wat het straatbeeld fijnmazig en levendig houdt. De dubbele gevel helpt met de akoestiek: in dit drukke stedelijke gebied vormt de gelaagde constructie een buffer tegen omgevingsgeluid, waardoor de wooncomfort verhoogd wordt zonder dat openheid en daglicht verloren gaan.
Omdat het oorspronkelijke hoekpand witgepleisterd was, vroeg de stad om deze uitstraling opnieuw te introduceren. Dit principe werd doorgetrokken over de volledige gevelrij, telkens met een eigen materialiteit zoals aluminium lamellen, prefab zichtbeton met kruisjespatroon, glaspartijen en wit pleisterwerk. Zo ontstaat een harmonieus maar genuanceerd gevelbeeld. De geleding van de gevels wordt versterkt door een gradatie van zeer open aan de zijde van de Grote Markt naar meer gesloten dieper in de Scheerstraat.
Variatie in materialiteit van de gevels. Links: aluminium lamellen, rechts: wit zichtbeton met kruisjespatroon
Specifics
Opdrachtgever: Stad Mechelen
Locatie: Mechelen
Realisatie: 2011 – 2018
Ontwerpteam: David Driesen, Tom Verschueren, Gert-Jan Schulte, Emilie Dorekens
Ingenieur Stabiliteit: Util struktuurstudies
Fotografie: Sergio Pirrone
Schaal: 689 m²













