Wasserijsite
Wasserijsite
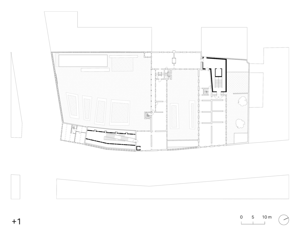
Het project Wasserijsite maakt deel uit van het stadsvernieuwingsproject En route! in de wijken Dampoort en Sint-Amandsberg in Gent. Deze buurt wordt gekenmerkt door een dense stedelijke structuur met gesloten bouwblokken en een mix van residentiële en kleinschalige industriële functies. De Wasserijsite bevindt zich midden in zo’n bouwblok en bestaat uit een gevarieerd geheel van gebouwen, waaronder een herenwoning, een voormalig industrieel wasserijgebouw en verschillende loodsen.
De opdrachtgever stelde de vraag om deze versnipperde en deels onderbenutte site te herontwikkelen tot een betekenisvolle plek voor de buurt. Daarbij lag de nadruk op het creëren van ruimte voor lokaal ondernemen, innovatie en creatieve initiatieven, met bijzondere aandacht voor jonge starters en een sterke wisselwerking met de omgeving. Het beheer van de site is in handen van WasCo, die deze mix verder zal invullen via een programmatie met onder meer workshops, sportactiviteiten en culturele evenementen.
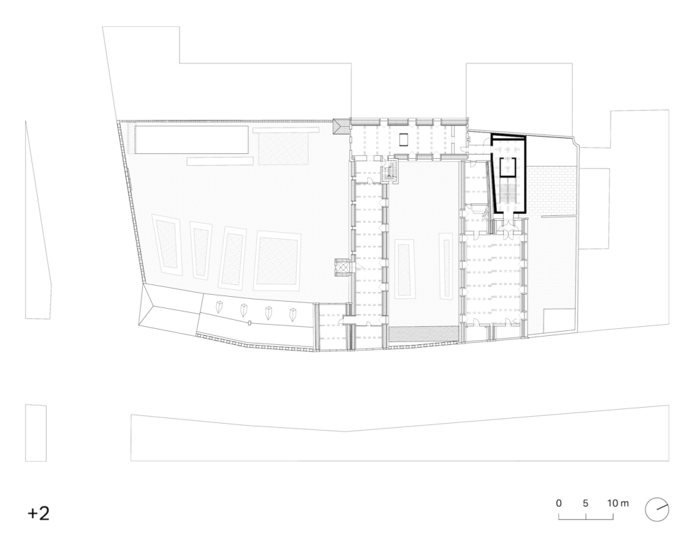
Als antwoord hierop startte dmvA met een ontwerpend onderzoek naar het potentieel van de site. Op basis daarvan werd een architecturaal concept ontwikkeld dat verder verfijnd werd via participatiemomenten met buurtbewoners. Centraal in de aanpak staat het ontpitten van het binnengebied: minder waardevolle gebouwen worden verwijderd om ruimte te maken voor groen en openheid binnen het dichte bouwblok.
Tegelijk worden karakteristieke elementen behouden, zoals de 19de-eeuwse gevel van het herenhuis aan de Toekomststraat, de industriële gevel aan de Kunstenaarstraat, de modernistische binnengevels en specifieke erfgoedelementen zoals de schouw, het waterreservoir en het glasraam met het monogram van oprichter Maurice Dossche bewaard. Deze elementen verankeren het project in zijn geschiedenis zonder het te musealiseren en versterken de identiteit en het geheugen van de plek.
Het project zet daarnaast in op toegankelijkheid en verbinding. Door een nieuwe doorsteek tussen de Toekomststraat en de Kunstenaarstraat wordt de site doorwaadbaar gemaakt. Deze route loopt deels door de buitenruimte en deels door een binnenstraat in het wasserijgebouw. Aan de Toekomststraat wordt een rijwoning verwijderd, waarbij de vrijgekomen wand wordt vergroend met klimplanten en ondersteund door een stalen structuur die tegelijk als herkenbare toegang fungeert. Het binnengebied wordt landschappelijk vormgegeven door Fris in het Landschap, met een focus op een meer natuurlijke, verwilderde groenaanleg met diverse sferen. Terrassen en stapstenen structureren het plein zonder het vast te leggen, waardoor verschillende vormen van gebruik mogelijk blijven.
De gebouwen op de site worden gerenoveerd met het oog op flexibiliteit en polyvalent gebruik. Dankzij een heldere organisatie, nieuwe circulatiekernen en doordachte technische ingrepen kunnen verschillende functies eenvoudig worden ondergebracht en aangepast aan toekomstige noden.
Het ontpitte binnengebied met bewaarde modernistische gevels
Er wordt bewust gekozen voor een dialoog tussen oud en nieuw: bestaande structuren blijven maximaal behouden, terwijl nieuwe toevoegingen uitgevoerd worden in zichtbeton en ruw metselwerk. Dit resulteert in een zogenaamde littekenarchitectuur, waarbij de geschiedenis van de plek leesbaar blijft.
De duurzaamheid van het project ligt in meerdere aspecten. Enerzijds wordt ingezet op hergebruik van bestaande gebouwen en materialen, wat de ecologische impact aanzienlijk vermindert. Anderzijds zorgt het ontpitten voor meer groen en waterinfiltratie in het bouwblok. De flexibiliteit van de ruimtes verlengt bovendien de levensduur van het project, doordat het eenvoudig kan inspelen op veranderende noden. Tot slot versterkt de sterke verankering in de buurt de sociale duurzaamheid, door ontmoeting, lokale economie en betrokkenheid te stimuleren.
Specifics
Opdrachtgever: sogent
Locatie: Gent
Realisatie: 2017 – 2026
Ontwerpteam: Tom Verschueren, David Driesen, Eva Vanderborcht, Dries Delagaye, Kotryna Urbonaite
Ingenieur Stabiliteit: Denkbar
Ingenieur Technieken: HP Engineers
Credits 3D image: dmvA
Schaal: 1767 m2
’t Atelier
't Atelier
Het project bevindt zich net buiten de ring van Mechelen, langs de drukke Battelsesteenweg. Deze steenweg vormt een belangrijke toegangsweg tot de stad en wordt gekenmerkt door een mix van woningen, handelszaken en publieke voorzieningen. Te midden van deze levendige stedelijke context bevindt zich een site die zowel het OCMW, het Regionaal Open Jeugdcentrum Mechelen (ROJM) en ’t Atelier huisvest.
’t Atelier is een sociale werkplaats waar mensen worden tewerkgesteld die op de reguliere arbeidsmarkt niet gemakkelijk aan een job geraken. Ze bestaat uit een fietsatelier en een interieurafdeling waar houtbewerking en schrijnwerk centraal staan. Aangezien het fietsatelier uit zijn voegen barstte, werd er een woning gekocht grenzend aan de publieke toegang tot de site. De bestaande woning en de achterliggende werkruimte bevinden zich op een L-vormig perceel dat begrensd wordt door verschillende achtertuinen, het houtatelier en de achterzijde van het ontmoetingscentrum Olivetenhof.
De bestaande woning maakt plaats voor een compacte nieuwbouw waar plaats is voor de fietswinkel, de fietsherstelplaats en kantoren. Aangezien de nieuwbouw aan de toegang tot de drukbezochte site is gelegen, werd gezocht naar een vormgeving die een actieve dialoog aangaat met de publieke ruimte en tegelijk visueel aansluit bij de gevels van de naastliggende woningen. Het fronton boven de toegang aan straatzijde werd doorgezaagd zodat er een open zicht naar het binnengebied ontstaat, waarbij het doorgezaagde element werkt als een no-nonsense ontwerpelement dat de bezoeker begeleidt naar de achterliggende site.
Participatie was een belangrijke hoeksteen binnen dit sociaal-geëngageerd project. Aangezien dmvA voorafgaand aan dit bouwproject reeds verschillende schrijnwerkprojecten van ’t Atelier in hun ontwerpen integreerde, was er een sterke vertrouwensband tussen de architect en de bouwheer. Hieruit ontstond de wens om voor het nieuwbouwproject actief samen te werken met de mensen van het houtatelier zelf met als doel om hun bekwaamheid in de verf te zetten bij het optrekken van hun eigen gebouw.
Het gebouw is opgevat als een betonskelet van kolommen en vloerplaten, geïnspireerd op het Dom-Ino-huis van Le Corbusier. Dit plan libre maakt aanpassingen van de planindeling doorheen de tijd eenvoudig mogelijk en zorgt ervoor dat de invulling van deze basisstructuur door ’t Atelier kon uitgevoerd worden. Deze invulling werd ontworpen als een speelse opbouw van glas en houten buitenschrijnwerk, als het ware een toonzaal van de bekwaamheid van de houtafdeling van ‘t Atelier. De fierheid van de uitvoerders was de kers op de taart van het gehele proces.
Specifics
Opdrachtgever: ‘t Atelier vzw
Locatie: Mechelen
Realisatie: 2015 – 2019
Ontwerpteam: David Driesen, Tom Verschueren, Nandi Degrave
Ingenieur Stabiliteit: UTIL struktuurstudies
Fotografie: Johnny Umans
Schaal: 315 m²
Hof van Busleyden
Hof van Busleyden
Het Hof van Busleyden is een statig stadspaleis uit de 16de eeuw en een van de belangrijkste erfgoedlocaties van Mechelen. Samen met het paleis van Margaretha van Oostenrijk, het Schepenhuis en andere stadspaleizen vormt het een tastbare herinnering aan het Bourgondische verleden van de stad. Mechelen was toen een centrum van macht, religie en humanisme. Vandaag maakt het gebouw deel uit van de culturele driehoek van Mechelen. Sinds 1938 doet het Hof dienst als stadsmuseum. Het gebouw, dat als monument werd beschermd, ligt in een zone met een hoge concentratie aan historische panden ten noorden van de Grote Markt, en weerspiegelt zo het rijke cultuurhistorische weefsel van de stad.
Het Hof van Busleyden kent een rijke geschiedenis die teruggaat tot de 16de eeuw. Toen het werd gebouwd als stadspaleis van Hiëronymus van Busleyden, een invloedrijke humanist, raadsheer en mecenas aan het hof van de Bourgondische Nederlanden. Het gebouw fungeerde destijds als een ontmoetingsplaats voor vooraanstaande denkers en kunstenaars, waaronder Erasmus en Thomas More. Zo speelde het een belangrijke rol in het intellectuele leven van de Renaissance. Doorheen de eeuwen kende het pand diverse functies. Van adellijke residentie tot liefdadigheidsinstelling en uiteindelijk stadsmuseum vanaf 1938. Ondanks aanpassingen en verbouwingen bleef de laatgotische architectuur met haar kenmerkende bak- en zandsteencombinatie grotendeels behouden. Het stadspaleis wikkelt zich rond drie buitenruimtes, oorspronkelijk volledig afgesloten van en voor het publieke leven.
Het Hof heeft enorme schade opgelopen tijdens de Eerste Wereldoorlog. In 1914 werd Mechelen zwaar gebombardeerd door het Duitse leger. Grote delen van het dak en het interieur werden vernield. Het stadsbestuur was vastbesloten om het gebouw in al haar glorie te herstellen, en er een stadsmuseum in onder te brengen. Hoe we het gebouw vandaag kennen is eigenlijk een reconstructie van een geromantiseerd historisch gebouw.
In 1999 werd een architectuurwedstrijd uitgeschreven voor de uitbreiding, modernisering en restauratie van het stadsmuseum. De complexiteit hieromtrent behelsde, behalve het architecturale, ook het juist omspringen met het technische complex gegeven rond de museale technieken, klasse A. Het winnende ontwerp, van Hans Le Compte in samenwerking met dmvA, wist de jury te overtuigen door het bestaande historisch erfgoed niet aan te passen maar op een onzichtbare manier het museum uit te breiden. De uitvoering van het project startte in 2010 en verloopt gefaseerd tot in 2026.
Deze gefaseerde aanpak liet toe om tijdens de eerste fase de focus te leggen op de stedelijke doorwaadbaarheid en de structurele en technische uitbreiding van het museum, waarbij de nieuwe ondergrondse museumzalen werden gerealiseerd. In een tweede fase werd het hoofdgebouw gerenoveerd en geoptimaliseerd voor hedendaags gebruik, met nieuwe functies zoals een bar, boekenwinkel, terrassen en een circulatieblok dat de toegankelijkheid van het museum versterkt. Tijdens de derde fase werd de volledige museale inrichting uitgevoerd. In de laatste fase werd het Schipken, het hoekgebouw en een oude orgelschool, nog gerenoveerd en toegevoegd aan het museum.
Fase I
Fase I omvatte de her aanleg van de drie tuinen, het creëren van een doorgang tussen de Stadstuin en de Erekoer en de toevoeging van een ondergrondse museumzaal. Tijdens deze fase lag de nadruk op de toegankelijkheid en beleving van de gehele site versterkten, met respect voor het historische karakter van het monument.
De drie buitenruimtes van het renaissancepaleis, de Stadstuin, de Erekoer en de Beeldentuin, werden volledig heraangelegd en opnieuw opengesteld voor het publiek. Waar deze plekken vroeger afgesloten waren, vormen ze nu een toegankelijk en levendig geheel binnen de stad. De tuinen vervullen een meervoudige rol: ze functioneren als museumtuin en schakel op de museumas, als platform voor sculpturen en hedendaagse kunstvormen, maar ook als rustpunt in de stad. Ze bieden ruimte voor ontmoeting, reflectie en kleinschalige evenementen, en verbinden zo het museum met het dagelijks leven van de Mechelaar. Het eigentijdse karakter van de tuinen sluit subtiel aan bij het historische kader van de site: geen letterlijke reconstructie van een renaissancetuin, maar een serene, hedendaagse interpretatie die de humanistische geest van Hiëronymus van Busleyden levend houdt.
Door het openstellen van de buitenruimtes en het doortrekken van de gaanderij werd een vloeiende doorgang gecreëerd tussen de drie tuinen. Zo werd de site doorwaadbaar en opgenomen in de publieke ruimte. De opeenvolging van routes, binnenplaatsen en tuinen verankert het museum sterker in het stedelijke weefsel en versterkt de culturele dynamiek van de omgeving.
Het eigentijdse karakter van de tuinen sluit subtiel aan bij het historische kader van de site: geen letterlijke reconstructie van een renaissancetuin, maar een serene, hedendaagse interpretatie die de humanistische geest van Hiëronymus van Busleyden levend houdt.
De oostelijke vleugel bevat de circulatie naar de ondergrondse expositiezalen. Het gebouw afgebroken werd voor de bouw van de ondergrondse zalen, maar is daarna zoals oorspronkelijk heropgebouwd. Binnen werd het circulatiegegeven op een hedendaagse manier ingevuld door dmvA.
De trap fungeert niet enkel als circulatie-element, maar ook als architecturaal statement dat verwijst naar Mechelens traditie van vakmanschap en ambacht. Voormalig Vlaams Bouwmeester Bob Van Reeth, die een affiniteit met Mechelen bezit, adviseerde dmvA tijdens de ontwerpfase ‘dat de trap een dergelijke grandeur moet uitstralen dat een vader deze circulatie waardig acht om langs deze weg zijn dochter te overhandigen bij het huwelijksritueel’. Na de voltooiing van de trap heeft deze architect, geducht om zijn ongezouten meningen, de ingreep gecomplimenteerd.
De nieuwe museumzalen bevinden zich negen meter onder de buitenruimte en het beiaardmuseum. Een architect hoeft namelijk niet altijd zichtbaar in te grijpen, zeker wanneer deze in aanraking komt met een beschermd gebouw. dmvA besloot daarom de zaal onder de stadstuin te plaatsen om zo de omliggende historische context niet te schaden. Een technisch staaltje van ondergronds bouwen voorziet in een kleine en grote tentoonstellingszaal waarvoor een certificaat museumklasse conditionering A is uitgereikt – uniek in België. De grootste tentoonstellingszaal (30 m vrije overspanning, 6,5 m hoog) kan daarom internationale topstukken ontvangen
De complexiteit van de museale technieken verdwijnen in de architecturale uitwerking binnen de gebouwen door een doos-in-doos-principe. Zo doen ze geen afbreuk aan de kwaliteit en esthetiek van de plek.
Fase II
Fase twee behelst de renovatie van de hoofdgebouwen tot museum met bar, boekenwinkel en terrassen en een circulatieblok in nieuwe balegemsesteen ter vervanging van de 19de-eeuwse conciërgewoning.
De voormalige conciërgewoning, die zich tussen de verschillende vleugels van het Hof van Busleyden bevond, verhinderde een logische circulatie en beperkte de doorwaadbaarheid tussen de drie museumgebouwen. Door deze woning af te breken, ontstond de mogelijkheid om een nieuwe verbinding te creëren die de drie historische vleugels.
Het nieuwe circulatiegebouw is zo ontworpen dat het alle vloerniveaus met elkaar verbindt en waarin ook een technische ruimte is ondergebracht. Het gebouw is opgevat als een rustig, abstract volume in Balegemse natuursteen hetzelfde materiaal als de negblokken en speklagen in het aangrenzende historische gebouw. Ondanks zijn gesloten karakter krijgt het interieur een open en lichte sfeer dankzij het dak, opgebouwd uit een raster van betonnen balken met glazen invulling. Het invallende zenitale licht versterkt het gevoel van verticaliteit en trekt bezoekers als het ware naar boven.
Binnenin bestaat het circulatiegebouw uit betonnen wanden, gecombineerd met een glazen wand aan de zijde van het aanpalende historische gebouw. Het ruwe, bestraalde beton contrasteert met het delicate glas. Omdat het volume volledig uitkraagt, waren er geen kolommen nodig om het te ondersteunen.
Het circulatiegebouw dringt zich niet op, maar neemt het letterlijk en figuurlijk afstand van het omliggende historische gebouw. Het vormt een ingetogen schakel tussen oud en nieuw. Ook de aangrenzende beeldentuin sluit hierop aan: het ene deel vormt een visuele verlenging van het nieuwe gebouw, terwijl het andere deel als groene ruimte het historische paleis omarmt en versterkt.
Fase III
Fase 3 gebeurde in nauwe samewerking met de dienst musea van de stad Mechelen en de aannemer. Het werd gerealiseerd met bijzondere hedendaagse opvatting rond het gegeven van humanisme.
Binnen de historische context van het stadspaleis, dat ooit diende als ontmoetingsplaats voor humanisten zoals Erasmus en Thomas More, kreeg de scenografie van de vaste tentoonstelling haar vorm. Vertrekkend vanuit de bestaande architectuur werd elke kamer benaderd als een ruimte met een eigen verhaal en karakter. De inrichting staat volledig in dienst van de tentoongestelde objecten, terwijl waar mogelijk interactie met de bezoeker wordt aangemoedigd. De rode draad doorheen het museum wordt gevormd door kamers die het “nu” verbeelden en afwisselen met de collectiekamers.
Het museumparcours mondt uit in de zolderruimte, waar het topstukken van het erfgoed, de “Hofkes”, wordt tentoongesteld. Hiervoor werden speciaal ontworpen vitrines ontwikkeld die alle trillingen en omgevingsinvloeden uitschakelen om dit fragiele erfgoed optimaal te bewaren.
Naast de vaste scenografie in het paleis bevindt zich in de nieuwe ondergrondse museumzaal ruimte voor tijdelijke tentoonstellingen, waardoor het Hof van Busleyden flexibel kan inspelen op actuele thema’s en nieuwe samenwerkingen. Zo wordt het museum een plek waar verleden, heden en toekomst elkaar ontmoeten.
Zolderruimte waar de “Hofkes” hangen
Fase IV
De laatste fase van het Hof van Busleyden richt zich op de renovatie van Het Schipken, de voormalige beiaardschool ten zuiden van de site, en de integratie ervan binnen het museumcomplex. De oude woning en latere toevoegingen maakten het gebouw tot een samengestelde structuur. Met historische elementen die teruggaan tot voor 1745. Door de diverse bouwfasen en latere aanpassingen ontstond een mix van originele indelingen, kelderruimtes en opkamers, die het mogelijk maakt de functies op een slimme en respectvolle manier te koppelen aan het museum.
Bij de renovatie werd historisch respectvol omgegaan met de bestaande bouwlagen en stijlkenmerken. De rococo-elementen van de hoekwoning werden in een hedendaagse interpretatie behouden en versterkt.
Een belangrijke doelstelling van deze fase was de koppeling met het Hof van Busleyden. Reeds in fase 1 werd een interne verbinding voorbereid via de nieuwe traphal, waardoor Het Schipken op een logische manier in het museumparcours kan worden geïntegreerd. Interieurelementen die in Het Schipken worden toegepast, zoals kubistische banken, tafels en zitmeubels, komen ook terug in de inrichting van fase 2. Dit zorgt voor een consistente sfeer doorheen het hele museum.
Het Schipken wordt functioneel opgewaardeerd als ontmoetings- en participatieruimte, met digitale voorzieningen en beeldschermen die interactie en wereldwijde communicatie mogelijk maken, zonder dat de fysieke ruimte groot hoeft te zijn. Ook een kleinschalige barista-koffiehoek wordt voorzien, afgestemd op de openingstijden van het museum en gekoppeld aan een informatiepunt over de geschiedenis van het gebouw, Hiëronymus van Busleyden, het humanisme en de Beiaardschool.
Door deze aanpak ontstaat een multifunctionele, hedendaagse ruimte die het erfgoed van Het Schipken beleefbaar maakt en tegelijkertijd een gezellige, uitnodigende ontmoetingsplek biedt voor zowel museumbezoekers als Mechelaars.
Specifics
Opdrachtgever: Stad Mechelen
Locatie: Mechelen
Realisatie: 1999 – 2026
Ontwerpteam: dmvA i.s.m. hlc.r architecten: David Driesen, Tom Verschueren, Hans Le Compte, Valerie Lonnoy, Jolien De Baets, Gert-Jan Schulte, Lukas Versteele, Ruben Van den hove, Evelien Deprins, Jan De Vocht
Ingenieur Stabiliteit: Studiebureel BAS bvba
Ingenieur Technieken: Studiebureau IRS- Deprez bvba
Landschapontwerper: Ars Horti
Fotografie: Bart Gosselin (phase 1), Frederik Vercruysse (underground museum hall), Sergio Pirrone (phase 2), Sophie Nuytten
Schaal: Fase 1: 1450 m²(uitbreiding), Fase 2: 3000 m²
Sports hall KA Hiel
Sports hall KA Hiel
De scholencampus KA Hiel bevindt zich in Schaarbeek, net boven Brussel, en manifesteert zich als een groene long binnen de stedelijke context. De campus wordt gekenmerkt door vrij grote hoogteverschillen in het terrein alsook door de verscheidenheid van gebouwen en paviljoenen. De bebouwing aan de randen van het bouwblok varieert van rijwoningen tot hoge vrijstaande flatgebouwen.
Voor scholencampus KA Hiel in Schaarbeek werd er aan dmvA gevraagd om een sporthal te ontwerpen voor de school zelf en de lokale gemeenschap. De sporthal moest zowel ontsloten worden vanuit de bestaande scholencampus als vanaf de straat. Met een beperkt budget werd er een duurzaam en onderhoudsarm sportgebouw gevraagd.
Inspelend op de campusmorfologie wordt de nieuwe sporthal als een autonoom object ingeplant. Door de verzonken inplanting in het talud van het grootschalige bouwvolume treedt er een schaalverkleining op. De nieuwe sporthal vormt een harmonieuze overgang tussen het hoge hoofdgebouw van de middelbare school en de kleinschalige kleuterpaviljoenen. De ontsluiting van de sporthal gebeurt via een natuurlijke insnijding in het hellende terrein.
De wanden van het basisvolume werden opgebouwd uit ontdubbelde wanden in waterdicht gewapend zichbeton, van elkaar gescheiden door isolatieplaten in pur. De wanden met een hoogte van 8 meter werden in 1 fase gestort. De dakstructuur bestaat uit een roostervloer uit gelamelleerd hout opgehangen aan 3 stalen vakwerkliggers en 1 stalen vakwerkligger in de langsrichting. Dit resulteert in een driedimensionale sculptuur met 6 ‘dakkamers’.
Het gebouw dat door zijn programma vrij gesloten is, manifesteert zich aan de buitenzijde als een ‘sport-doe-gebouw’. Het interne sportspeelveld wordt letterlijk in de derde dimensie veruitwendigd door het aanbrengen van de sportveldbelijning op de gevels. Het gebouw wordt aan de buitenzijde gebruikt als tennismuur, voetbalwand. Het gebouw animeert de leerlingen en de omgeving.
Specifics
Opdrachtgever: Scholengroep Brussel
Locatie: Schaarbeek
Realisatie: 2004 – 2009
Ontwerpteam: Tom Verschueren, David Driesen, Lindsay Rinckhout, Sofie Buggenhout
Ingenieur Stabiliteit: BAS – Dirk Jaspaert Boydens
Fotografie: Frederik Vercruysse
Schaal: 1425 m²
Jeugddomein De Hoge Rielen
Jeugddomein De Hoge Rielen
De Hoge Rielen is een verblijfsdomein waar multifunctionele activiteiten en innoverende natuur-educatieve initiatieven voor de jeugd worden georganiseerd. Om het project te kunnen kaderen, moeten we terugkeren naar de jaren ‘60 toen het domein is ontstaan als militair landschap tijdens de Koude Oorlog. Het Britse leger creëerde opslagloodsen en kampen doorheen Europa om snel te kunnen reageren bij militaire onrust. Wanneer de loodsen uiteindelijk effectief in Kasterlee opgebouwd waren, was het militaire concept met lokale uitvalbasissen echter achterhaald. Hierdoor heeft het domein slechts acht jaar lang een militair doeleind gehad. Sinds 1976 wordt het gebied als jeugdaccommodatie gebruikt. In die tijd werd er geen waarde toegekend aan het militaire historisch erfgoed en dat zie je aan de manier waarop er met de loodsen werd omgegaan. Verschillende loodsen werden ingrijpend verbouwd om te dienen als verblijfsgebouw.
In 2004 werd een masterplan opgesteld door Studio Secchi & Viganó dat het domein opdeelt in een natuurlijke, militaire en pedagogische laag waarbij er wél waarde wordt gehecht aan de opslagruimtes als militair erfgoed.
Het natuurlijke landschap heeft een ecologische en esthetische waarde en bestaat uit naaldbossen en patches met een hogere biodiversiteit, waaronder heide.
Het militaire landschap wordt gekenmerkt door loodsen, ophogingen en waterbassins die volgens de regels van “de juiste afstand” over het terrein verspreid zijn tussen een netwerk van wegen.
De educatieve/recreatieve laag, die tot uiting komt als jeugdcentrum, gebruikt de eerste twee lagen als onderlegger en omvat een intern en een extern gedeelte. Het interne gedeelte bestaat uit nabijheidsgebieden die ten dienste staan van groepsactiviteiten. Een nabijheidsgebied heeft telkens een paviljoen of kampeerterrein als centrum gecombineerd met een open ruimte voor spel en kampvuur.
Het externe gedeelte van de educatieve laag bestaat uit de middenweg en collectieve voorzieningen zoals het onthaal en de hostel Wadi. De middenweg is de kapstok van het domein en doet dienst als verbinding voor het zachte verkeer tussen de omliggende dorpen.
Het masterplan van Studio Secchi & Viganò analyseert op het domein een gradiënt die aan de westzijde getypeerd wordt door constructies met een expressieve architecturale taal die past bij het meer publieke karakter en die richting het oosten overgaat naar een authentiek militair landschap. Hiervan getuigen het onthaalgebouw aan de westelijke toegangspoort (Erik Wieërs, 2002), ontworpen als imposante maxiloods om groepen te ontvangen en Hostel Wadi (Secchi-Viganò, 2013) dat logeerplekken biedt in een cirkelvormige constructie die volledig opgaat in het groen.
In het midden van het domein zijn de gebouwen sinds de jaren ’80 ingrijpend getransformeerd maar deze zijn qua ontwerp meer low profile dan de volumes aan de westzijde. Het is binnen deze context dat dmvA Theater en Gebouw 39 heeft gerealiseerd, als ingetogen volumes gebaseerd op de bestaande loodsen. Aan de oostzijde is het militaire landschap het meest voelbaar en authentiek. Hier worden de loodsen gezien als een overdekte en beschermde uitrusting waarvan de schillen intact blijven. In deze zone pakte dmvA Gebouw 27 en Gebouw 30 aan op een restauratieve manier. Daarnaast creëerde dmvA met OMGEVING Vuurplaats B, die binnen het concept van een nabijheidsgebied past met plaats voor een kampvuur en groepsactiviteiten.
Gebouw 39
Gebouw 39
Het bestaande paviljoen werd wegens haar slechte bouwfysische staat afgebroken en er werd een nieuwe verblijfsaccommodatie gecreëerd voor groepen met 20 vaste slaapplaatsen. Er werd getracht het nieuwe gebouw te ontwerpen naar eenzelfde logica waarmee de militaire gebouwen ontworpen zijn, rekening houdende met de hedendaagse technieken en functionele eisen. Het gebouw werd daarom opgevat als een shelter waaronder het paviljoen werd gebouwd. Deze shelter werd gerealiseerd in vezelcement golfplaten in lijn met het materiaalgebruik op het domein. De buitenzijde werd afgewerkt met prefab betonpanelen met het oog op functionaliteit en robuustheid met een belijning en ritmering van raamopeningen die refereert naar de opbouw van de militaire loodsen. Het buitenschrijnwerk werd uitgevoerd in hout.
De vier slaapkamers van het paviljoen worden aan weerszijden van de centrale leefruimte georganiseerd. Door grote raampartijen aan noord- en zuidzijde zoekt de leefruimte maximaal contact met de middenweg en de omgevende natuur. De slaapruimtes worden per twee georganiseerd met telkens vier stapelbedden en integraal toegankelijk sanitair. Aan één van de twee slaapplaatsen wordt telkens een mezzanine boven het sanitair gekoppeld die flexibel gebruik toelaat.
Theater
Het gebouw Theater behelst een grote multifunctionele ruimte die kan gebruikt worden voor een muziekuitvoering, een dansvoorstelling, een receptie, een vergadering… Het is een uniek bakstenen project waarbij de geschiedenis van de Hoge Rielen zichtbaar is aan de hand van verschillende soorten metselwerk. Zo komt de oorspronkelijke militaire fase tot uiting in de stalen frame met invulmetselwerk in een halfsteens verband en is de start van de pedagogische fase in de jaren ’80 zichtbaar door het metselwerk in een wild verband (de bijgebouwde schouw).
De uitzuivering en het behoud van die historische leesbaarheid was een belangrijk uitgangspunt bij het ontwerp van de reconversie. In functie van het gevraagde programma zijn er extensies toegevoegd die uitgevoerd zijn in een gelijmd stapelverband en zo een nieuwe tijdslaag creëren. In lijn met de toegevoegde schouw die op de middenweg staat, zijn de extensies sculpturaal opgevat waarbij de loods niet meer als een gesloten doos wordt gezien, maar er contact wordt gezocht met de omgeving en de middenweg. Deze interactie wordt versterkt door het creëren van openingen in de zuidgevel en de schouw.
Aan alle kanten van de polyvalente zaal is een gordijnenrail geplaatst die in het midden van de zaal uitmondt in een cirkelvormige rail. Zo kunnen de gebruikers de sfeer en de daglichttoetreding van de zaal zelf bepalen naargelang de functie en de noden, wat de flexibiliteit en de polyvalentie van de zaal bekrachtigd.
Vuurplaats B
Constructie van de kampvuurkring
Vuurplaats B
De kampvuurplaats werd ontworpen in samenwerking met OMGEVING landschapsarchitecten. De bestaande vuurplaats, die niet meer was dan een geblakerd stuk grond, werd omgevormd tot een vaste kampvuurkring met 180 zitplaatsen. Ze vormt een deels verheven, deels verzonken kring in het open landschap. De toegang waarin de zitranden verdwijnen, is centraal toegankelijk voor rolstoelgebruikers. Aan de helling is een berging voorzien in roestvast staal waarin een kruiwagen geborgen kan worden voor de aanvoer van het brandhout.
Gebouw 27
Gebouw 27
Gebouw 27 is een goed bewaarde militaire loods die vandaag wordt gebruikt als uitvalsbasis voor het klimbos. De buitenschil werd met een restauratie-attitude gerenoveerd en binnen werd een tribune, bergruimte en sanitair voorzien ter ondersteuning van het avonturenparcours. dmvA ontwierp een klimelement, geplaatst over het talud rondom het gebouw, als tussenschakel tussen de loods waar initiatieles wordt gegeven en de toren die naar het klimbos leidt. De constructie bestaat uit gele staalplaten en is zo reversibel mogelijk gemaakt door ze enkel aan de funderingszolen te verankeren. Aan de zuidgevel van het gebouw werden twee gele schuifpoorten voorzien, corresponderend met het klimelement.
Gebouw 30
Gebouw 30
Deze loods bleef bewaard in zijn oorspronkelijke vorm en wordt getypeerd door een staalframebouw met rood metselwerk en vezelcementen golfplaten. Aangezien deze loods in de oostzijde van het domein ligt, werd voor een restauratieve aanpak gegaan met minimale ingrepen. Het gebouw vormt voor de naastgelegen kampeerplaats een shelter om te spelen, eten, slapen of koken. De buitenschil werd gerenoveerd en voorzien van nieuwe rode nooddeuren in de kopse gevels.
Specifics
Opdrachtgever: Departement CJM
Locatie: Kasterlee
Realisatie: 2017 – 2022
Ontwerpteam: Tom Verschueren, David Driesen, Eva Vanderborcht, An-Sofie De Backer
Ingenieur Stabiliteit: Archimedes
Ingenieur Technieken: Archimedes
Fotografie: Stijn Bollaert
Kunstencentrum nOna
Kunstencentrum nOna
Kunstencentrum nOna is een plek waar kunst en verhalen samenkomen. Het centrum geeft ruimte aan kunstenaars die iets willen vertellen, die met hun werk onze verbeelding prikkelen en ons anders naar de wereld laten kijken. In nOna vind je muziek, theater, dans en beeldende kunst die raakt, verrast en aan het denken zet.
Eind jaren ’90 botste die artistieke groei op haar grenzen. De charmante Art-Deco theaterzaal in de Begijnenstraat, waar het allemaal begon, bleek te weinig flexibel voor repetities en nieuwe artistieke vormen. Artiesten hadden nood aan ruimte om te oefenen, te experimenteren en te groeien. In samenwerking met Stad Mechelen besloot nOna daarom de oude, leegstaande drukkerij naast de zaal aan te kopen en om te vormen tot een tijdelijke werkplek. Zo ontstond in 1999 nOva: drie oefenzalen voor artiesten in nood, waar de verbeelding opnieuw alle vrijheid kreeg.
Wat begon als een praktische oplossing groeide uit tot een duurzaam verhaal. In 2016 startte de effectieve renovatie en uitbreiding van nOna, waarmee het kunstencentrum opnieuw ademruimte kreeg. Dit project paste naadloos binnen het stedenbouwkundig beleid van Mechelen om de Begijnenstraat te versterken als cultuur-as tussen de Grote Markt en de Lamot-site.
De site van nOna ligt verscholen in een bouwblok, doorsneden door een middeleeuwse brandsteeg die de oude en nieuwe delen van de site van elkaar scheidt. De historische morfologie van het gebied, het netwerk van stegen en doorgangen, vormde de inspiratie voor het ontwerp. In plaats van gebouwen te ontwerpen, lag de focus op het creëren van ruimtes die de oorspronkelijke stedelijke structuur weerspiegelen. Zo werd het grote bouwblok opnieuw doorwaadbaar gemaakt, waarbij de middeleeuwse stegen werden hersteld. De oude drukkerijsite werd ontpit en omgevormd tot een nieuw kunstencentrum, waarin binnen- en buitenkamers verwijzen naar de vroegere morfologie van het terrein. Op deze manier werd niet alleen ingespeeld op de grillige vorm van de kavel, maar ook een hedendaagse repliek gegeven op het oorspronkelijke samenspel van tuinmuren, koterijen en stegen.
Middeleeuwse brandsteeg waar ruimtes op aansluiten
Zo ontstonden er drie patio’s als stedelijke kamers rond de nieuwe theaterzaal en het forum, een multifunctionele ruimte met de allure van een overdekte markthal. De inkompatio vormt de schakel tussen de Begijnenstraat en het binnengebied. Het ent zich op de middeleeuwse brandstraatjes en de voorbouw. De grote patio vormt het verlengde van het forum en de langwerpige patio verzorgt de ontsluiting naar de achterliggende artiestenfoyer. De grens tussen binnen en buiten wordt vervaagd door gevelbrede openingen. De buitenpatio’s werden in samenwerking met kunstenaar Nick Ervinck uitgewerkt naar het concept ‘baksteen in beweging’.
Luchtfoto nOna met de drie belichte patio’s
Aan de straatzijde werd een nieuwe invulbouw gerealiseerd die een gezicht geeft aan nOna en een poort is naar het achterliggende binnengebied. Het gebouw verbindt de nieuwe site met de oude speelzaal en is opvallend gepositioneerd boven een bestaande steeg, waardoor de historische doorgang behouden blijft en onderdeel wordt van het nieuwe ontwerp. Door de glazen gevelarchitectuur gaat het kunstencentrum de interactie aan met de stad. LED lichtkranten geven de programmatie op de gevel weer, animeren het straatbeeld en nodigen zo voorbijgangers uit.
Voorgevel gezien vanuit de Begijnenstraat
De nieuwe zaal is een multifunctionele betonnen doos geworden, waarbij de gevelbekleding in prefabbetonpanelen werd voorzien van de ingelegde letters N O N A, als evidente verwijzing naar de naam van het kunstencentrum, maar ook als reminiscentie naar het drukkerij-verleden van de site.
In functie van de akoestische eisen werd de theaterzaal opgevat volgens het doos-in-doosprincipe. Daarnaast werd gewerkt met een uitschuifbare tribune, zodat de opstelling flexibel kan worden aangepast aan verschillende producties. Bij het ontwerp van de zaal stond ook de relatie tussen publiek en performance centraal: de volledige ruimte is zo ingericht dat de afstand tussen toeschouwers en artiesten zo klein mogelijk is, waardoor een intense en directe beleving van elke voorstelling ontstaat.
De wandafwerking in het interieur van nOna verwijst subtiel naar de lambrisering van een 19e-eeuwse stadswoning. Tegelijkertijd is het plafond uitgevoerd in een betonnen wafelstructuur, die een moderne, robuuste toets toevoegt en de architecturale expressie van het gebouw versterkt.
Gedurende het 20-jarige bouwproces werd er op alle niveaus participatie aangegaan. dmvA fungeerde hierbij als katalysator, wat leidde tot duurzame samenwerkingen en een groter sociaal draagvlak. Door duurzame samenwerkingen aan te gaan met de buren, de stad, aannemers, het uitvoerende personeel, vzws en ambachtscholen. De samenwerking met technische scholen te Mechelen zorgede voor een leerproject rond kaleien. Met vzw Onbetaalbaar werd een project gerealiseerd dat nOna een eigenheid geeft en zich ankert op zijn plek. Verschillende sessies met de buren resulteerden in een aangenaam werfgebeuren en vrijwilligershulp. Vzw Onbetaalbaar realiseerde samen met de architect een tijdopname van aanbesteding tot uitvoering. Hierbij werden alle partners in het licht gezet aan de hand van QR-codes die herinneringen aan het proces vertellen. Tevens maakte fotografe Kaat Pype tijdens de werken beelden die ook werden tentoongesteld. Tussen Onbetaalbaar en dmvA werd ook een sociaal tewerkstellingsproject opgestart dat resulteerde in unieke deurtrekkers.
Foto’s van het proces door Kaat Pype
Openbare gebouwen in België worden verplicht om 1 procent van het bouwbudget te voorzien van kunst. dmvA overstijgt dit door de kunst als het gebouw te bekijken. Nieuwe stedelijke plekken worden in de stad gerealiseerd in de stad en creëren een belevenisruimte tussen straat en toneel. Nick Ervinck, die eerder samenwerkte met dmvA, verhief deze intentie tot een vierde dimensie met zijn werk ANONOV.
Op vlak van duurzaamheid werd bij nOna op verschillende niveaus ingezet. Het kunstencentrum is het eerste gebouw in de Benelux dat werd opgetrokken in ‘groen’ (of circulair) beton, en oude printplaten van de vroegere drukkerij werden hergebruikt als afwerking van de sanitaire wanden. Ook de stedelijke morfologie werd hergebruikt: het ontwerp sluit aan bij het bestaande netwerk van stegen en binnenruimtes. Het project draagt bij aan stedelijke duurzaamheid, door in te zetten op verdichting binnen een bestaand stadsblok, en aan sociale duurzaamheid, door een toegankelijke plek te creëren waar kunstenaars en publiek samenkomen. Daarnaast werd er rekening gehouden met economische duurzaamheid, door een flexibele structuur te ontwerpen die de tand des tijds kan doorstaan, en met materiaalduurzaamheid, bijvoorbeeld door deurknoppen te vervaardigen uit gerecycled aluminium. Zo combineert nOna circulair bouwen met een toekomstgerichte visie op stedelijke en sociale context.
Sanitair waarbij de wanden zijn afgewerkt met de oude printplaten
Specifics
Opdrachtgever: vzw Theater Teater
Locatie: Mechelen
Realisatie: 2002 – 2020
Ontwerpteam: David Driesen, Tom Verschueren, Kobe Van Praet, Valerie Lonnoy, Michael De Roeck, Gert-Jan Schulte, Lukas Versteele
Ingenieur Stabiliteit: UTIL struktuurstudies
Ingenieur Technieken: Technum – Tractebel Engineering nv
Fotografie: Sergio Pirrone
Schaal: 720 m2
GC Elzenhof
GC Elzenhof
Elzenhof is gelegen in Elsene, een Brusselse gemeente net ten zuiden van het stadscentrum. Het gemeenschapscentrum maakt deel uit van de Vlaamse Gemeenschapscommissie en fungeert als draaischijf voor de Vlaamse gemeenschap in Brussel. Het is een ontmoetingsplaats waar je terechtkan voor workshops, een cafetaria, bijeenkomsten, kleine theatergezelschappen, muziek en meer. Ook Kind & Gezin heeft er een afdeling.
Het programma van eisen bestond uit de reorganisatie van de inkomzone, de omvorming van de zolder tot multifunctionele oefenzaal of kunstenwerkplaats, een groot dakterras aan de cafetaria en het connecteren van het centrum met de tuin via een brede ondergrondse trap.
Elzenhof bestaat uit drie historisch waardevolle herenhuizen die grandeur uitstralen. In de loop van de jaren zijn er in de gebouwen verschillende ingrepen gebeurd om de faciliteiten te verbeteren. De opdracht die dmvA via een wedstrijd toegewezen kreeg, kadert binnen dit stapsgewijze verbeteringsproces.
De donkere kelder is omgevormd tot een lichtrijke multifunctionele plek die bijvoorbeeld als crèche kan dienen maar evengoed als podium & de trap als tribune. De interventies zijn subtiel maar hebben een grote impact op de werking van het gemeenschapscentrum.
Specifics
Opdrachtgever: Vlaamse Gemeenschapscommissie
Locatie: Elsene
Realisatie: 2011 – 2022
Ontwerpteam: Tom Verschueren, David Driesen, Gert-Jan Schulte, Lukas Versteele, Rob Naulaers, Ine Papen
Ingenieur Stabiliteit: ASB
Ingenieur Technieken: Boydens Engineering
Fotografie: Goedele De Wilde
Schaal: 2800 m²















































































