
Office CV

Specifics
Client: NV C. Vorsselmans
Location: Loenhout
Realization: 2000 – 2002
Design team: David Driesen, Tom Verschueren, Hans Verbessem
Structural engineer: SMB
Photography: Bart Gosselin
Size: 3200 mu00b2
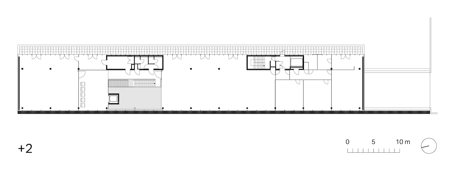
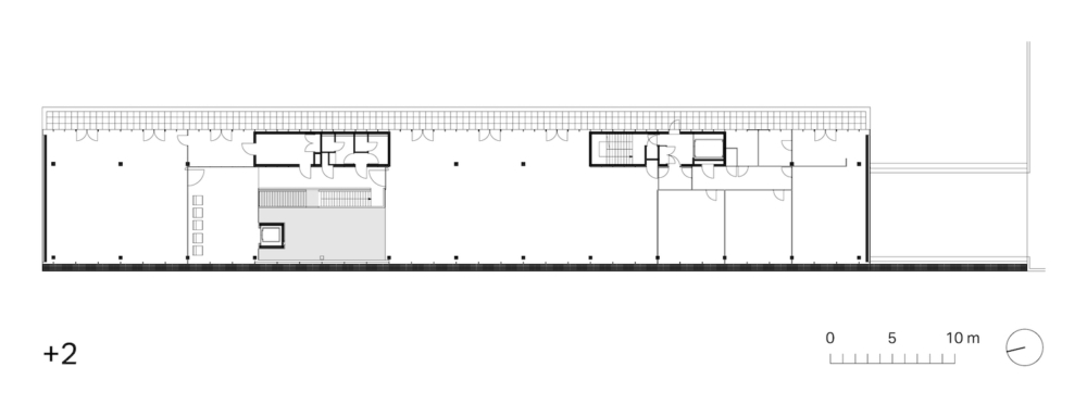
Vorsselmans is a contractor of glass and facade construction, situated in the industrial zone of Loenhout (BE). Due to lack of space and their wish to make the company more visible, the client decided to buy the adjacent plot for the creation of a sustainable office building. A visual and functional connection between the new building and the existing workplace was essential. The main characteristics of the plot and determining for the concept are the location of this long small plot on the corner of the industrial zone, its north-south orientation and the beautiful view of the vast meadow landscape.
A fourfold concept
1. The basic volume is a beam and is determined by the urban planning regulations.
2. The facade on the west side is opened up creating a maximal view of the landscape.
3. A black frame (‘shadow box’) was placed in front of a curtain wall that was filled with spider glass. The double skin meets the ecological and commercial requirements of the client.
4. The middle building layer has been visually extended and thus forms the functional connection with the existing workplace. Inside the building a void was created that spatially connects the three building layers and allows the light to enter the building. All spaces are organized around the void and are visually connected to it.