House VMVK
Specifics
Client: VM-VK
Location: Confidential
Realization: 2007 – 2012
Design team: David Driesen, Tom Verschueren, Valerie Lonnoy, Katrien Geerinckx
Structural engineer: ASB
Photography: Frederik Vercruysse – Drone photo: Sergio Pirrone
Size: 506 mu00b2
Publications
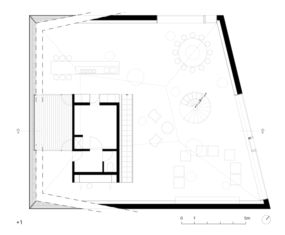
Living upstairs under a warped hip roof
dmvA started designing by reshaping a archetype form with a hip roof, the basic form based on the town-planning regulations. Extremely profound form-studies led to an amorphous form with a warped hip roof, with different angles of inclination, rising out above the dyke. By cutting out a part of the roof the house gets its sculptural form.
Because of reasons of privacy and the south orientation of the street, dmvA proposed living on the upper floors, under the hip roof, the symbol of shelter. The entrance, a private office, the garage, sleeping rooms and bathrooms are situated on the ground floor. A monumental white straight staircase leads to the spatial light living room with open kitchen, organised around a white volume with storage room. Marvellous window views on the green neighbourhood characterise the loft-like living room. A spiral staircase leads to the second floor, a multi-purpose room adjacent to the extraordinary intimate roof top terrace, a zen-like outer space. The use of white lacquered zinc for both roof and walls reinforce the house as an icon in nature.









