Apartments S
Specifics
Client: nv Vlaamse Poort
Location: Mechelen
Realization: 2003 – 2008
Design team: David Driesen, Tom Verschueren, Hans Verbessem, Sacha Bratkowsky
Structural engineer: Archimedes
Photography: Frederik Vercruysse
Size: 6500 mu00b2
Publications
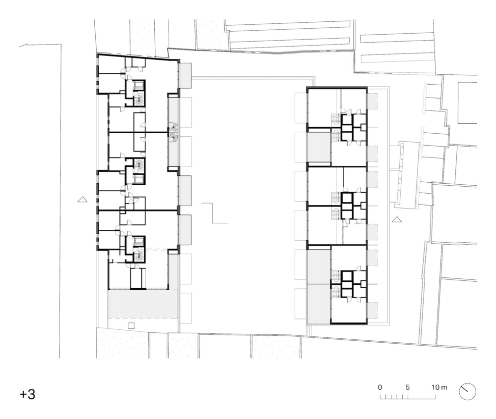
The vanishing of school functions in the centre of Mechelen created the possibility to realise new residences in the centre of the city. The development of the Lamot site increased the importance of the Begijnenstraat, situated on of the cultural axe between the new museum, art centre nOna and the cathedral St. Rombouts. Logically the area is now dedicated to housing. The residence consists of two volumes, divided by an inner area, oriented on the cathedral. The volume at the Begijnenstraat is built between two houses and responds to the Lorette Convent across the street. The varying cornice heights in the street are reflected in the heigth of the apartment building.













